
This 1936-built Mediterranean at 4324 Versailles Ave in Highland Park’s lauded French streets could be someone’s dream project, seeing through an architecturally significant home’s renovation for modern use. In fact, the plans are already drawn up by architect Chad Dorsey of Moore Design. This two-story, 6,464 square-foot home on .390-acre lot is listed for $3.3 million by Mark Godson of the Britannia Group with Compass Real Estate Texas.
For years, the sellers down the street on Turtle Creek Blvd. would go past the unique two-story home with a low-pitched Spanish tile roof, admiring what great bones and beauty this 30’s-era estate had. It was built by Dallas architect Fonzie E. Robinson, who designed and built prominent estates on Beverly Drive, Arcady Avenue, and Edmondson Avenue in Highland Park.
When the Versailles estate went on the market last year, the husband and wife team snatched it up. They’d done a stunning job fixing up their 1938-built home, a white stucco Mediterranean with an eye-popping blue roof, and saw an opportunity to give this older home a facelift. They spent six months drawing up plans with architect Chad Dorsey, but ultimately decided they as empty nesters didn’t need a 6,000-plus-square-foot home.

A bronze door, original hardwood floors, and a wrought iron staircase greet you as you walk into 4324 Versailles. To the right is a huge family room, full of light with arched windows and a pair of French doors, with a marble fireplace and a step-down solarium. Small intricate tile lines the solarium that showcases an ornate stone fountain.



To the left is a formal dining room with French doors that open to the front yard and adjacent to the kitchen that’ll need updating. (Yes, that’s utility carpet lining the kitchen.)

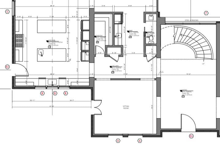
A new floor plan slates this as a sitting room that’s adjacent to an added butler’s pantry and expanded kitchen.
The second living room, remodeled some time in the 1960s, features honeycomb Spanish tile, wooden cross beams on the ceiling, and built-in shelving that flank the arched brick fireplace. A spiral staircase leads to the second floor landing between two of the four bedrooms upstairs.


The new floor plan shifts the master bedroom from the far end of the house to here and creates his and her baths complete with separate tub, shower, toilet closet, and closets. It also expands the bedrooms with en suite bathrooms and walk-in closets.


The covered patio is magnificently framed by two arches that look out onto the Italian walled yard. A two-bedroom guest quarters with bathroom and kitchen is located above the three car garage. This home in Highland Park ISD is zoned for Bradfield Elementary, McCulloch, and Highland Park High School.
