
I’d sketched enough plans to feel comfortable taking the Penthouse Plunge remodel of a double-penthouse at the Claridge on Turtle Creek. To review, I’ll be restoring the combined 5,311-square-foot unit back into two infinitely more livable spaces. But my work isn’t good enough for building permits. That’s the subject of this column – getting to permit phase.
Before you begin a major renovation, you need to know what you’re doing – and not just in your head. So you’ll need blueprints prepared by a professional, and not just to get errant thoughts on paper. First of all, major renovations – especially those in multi-family complexes – will need building permits. The governing HOA will want to know that the work is being inspected by professionals and that plans meet code requirements. With few exceptions, HOAs are not comprised of people in the construction trades.
The second reason for blueprints is to get accurate quotes from tradespeople and contractors. It will also help spec out what things you’ll need to buy – toilets, drawer pulls, tile, etc.
But how do you find the right resources to draw up your plans? That’s where it gets interesting.

For this renovation, I returned to the architecture firm I used for my last renovation. While usually a good place to begin, this time it wasn’t. The plans I needed for my Athena renovation cost me $1,500 for a 1,899 square foot unit. Figuring the same amount of work for the Claridge renovation but accounting for the increase in the size of the project, I was OK with something along the lines of $3,000 to $5,000.
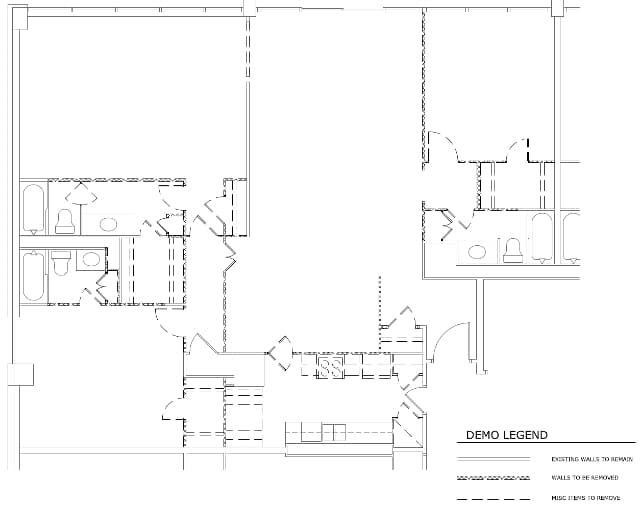
Note: When I renovate, I have a very good idea of what I want. In the case of the Claridge, I had scanned the original building blueprints from when it was specified as two units. I also found a trove of original plans in the unit from its first buildout and reconfiguration into a combined unit. From there I created amateur (though fairly accurate) plans for what I wanted. Armed with all that, I sought out architects to create “official” plans for city permitting and contractors to work from.
I found that in the six years since I’d used the “Athena architects” that the partnership had split into two firms. I met with both. Even after seeing my plans and touring the Claridge, the first partner was very cagey about giving a ballpark figure. When a proposal arrived, I was in shock. There were hourly rates and such, but no bottom-line figure. Instead, the cost was capped at 8 percent of my renovation budget.
Think about that for a moment. That’s $8,000 for every $100,000 being spent on a project. The Claridge renovation will be hundreds of thousands of dollars. I responded with shock but was told that 8 percent was a high watermark, but the fees would likely be closer to $15,000. Still a heck of a lot more than I wanted to pay.
I spoke with the carved-out firm and told him of the 8 percent and how nuts I thought that was. I did not tell him about the lower $15,000-ish estimate. His estimate came in at about the same $15,000.
So let’s break down that $15,000 number. Let’s say the hourly rate was $100 – that equates to 150 hours of work to convert all the information I had into blueprints. That’s almost a month of 40-hour workweeks – to update existing blueprints for a renovation, not design a home from scratch.

Turns out that some firms charge based on what you’re spending elsewhere. It’s the equivalent of pulling into a gas station and having the price fluctuate based on the kind of car you drive.
Getting a little panicked, I did a search online for someone who would convert my drawings into CAD files (the type of file that architects use). I knew from my Athena work that the initial conversions from scans to CAD were often offshored to India for a relatively cheap price – so I found one. The cost? $150. The cost to add in a demolition plan that showed what walls were moving added $70. That’s $220 folks. And it would be done in a week – it took two and wasn’t all I needed.
The day after seeing the CAD files – BAM – my eyes flew open at 4:30 a.m. scared. I began searching for someone who could take the CAD files to the next level. I stumbled upon Thumbtack, a site where various professional services list themselves with reviews (sort of like Yelp). I sent basic information to four draftsmen and went back to bed feeling like I’d done something.
When I woke up again, I had a reply from Daniel from DP Designs. (In all, two of the four I sent messages to responded.) I called and we spoke. A half-hour later, Daniel and I were shaking hands at the Claridge to walk through my needs. The price – quoted on the spot – was $2,100 and would take a week. I said, “done.” As with all things construction, Daniel was a few days late, but he knocked $100 off the bill.

Lessons Learned
Each renovation I’ve done has been more ambitious than the last. My first house was remodeling what was there with no configuration changes. The second was much the same. By the time of the Athena renovation, I was tearing down walls and moving things. The Claridge builds on those experiences.
The need for architectural plans was nothing new, but running into pricing based on a percentage of my budget was new (I guess my other renovations were so cheap I didn’t notice). I can’t imagine any other service where pricing changes based on ability to pay versus work done.
The lesson learned is one I have to keep reminding myself. Don’t wait. Seize control and push on. I thought the CAD conversion for $220 was a gigantic bargain, it ultimately wasn’t all that I needed (repeat after me: if it’s too good to be true, it probably is). In the end, a panicked Sunday morning was a small price to pay to get things back on track.
For those evaluating their own renovations and blueprint needs, seek alternative solutions. Don’t rely solely on past relationships and don’t settle for pricing you believe to be unfair and exorbitant. There is no way a condo renovation – with no foundations, roof or plumbing movement – should generate tens of thousands in architectural fees unless you’re paying for actual design work – i.e. here’s my empty box, fill it up – which I wasn’t.
Total Architectural Fees: $2,220 + $8.99 for a tub of Rolaids.

Remember: High-rises, HOAs and renovation are my beat. But I also appreciate modern and historical architecture balanced against the YIMBY movement. In 2016, 2017 and 2018, the National Association of Real Estate Editors recognized my writing with three Bronze (2016, 2017, 2018) and two Silver (2016, 2017) awards. Have a story to tell or a marriage proposal to make? Shoot me an email [email protected]. Be sure to look for me on Facebook and Twitter. You won’t find me, but you’re welcome to look.
