
What is a passive energy home? It’s a term that sometimes gets conflated with “green home.”
A home that is built with passive energy standards is a thoughtfully designed and built home where the owners can realize sometimes as much as 90 percent of energy costs versus a traditionally built home. It’s not just building materials. It’s also how the home is situated on a homesite and the direction the home faces.

Passive Energy Home in Weatherford

Head West from Fort Worth to Weatherford and that’s where we find today’s featured home. Located on a parcel of Texas landscape just over 20 acres, if you didn’t know the home was there you’d probably never notice it.
Literally, this home is part of the landscape. Do you want energy efficiency? Do you want privacy? If you want unique, then this is the home for you!

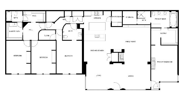
The amazing thing is that this home of four bedrooms, three bathrooms, and just over 3,100 square feet was built in 1980. These concepts and homes were definitely not top of mind with many people 43 years ago, that’s for sure.
The first owner of this home was a commercial architect who designed and built this home from scratch. Not only was it thoughtfully conceived more than four decades ago, but renderings and plans to expand the home can be yours if interested.

Light, Bright, And Sustainable

You wouldn’t think that a home with windows only on the front of the home would be so open and bright, but it is. That’s because there are windows in just about every opportunity possible at the front of this home.

Natural light pours into every nook of the home, which makes it so inviting. Of course, because the home is designed to be a passive energy home, the bills to heat and cool the home are nominal. This home is way before its time, that’s for sure.

Because it’s located on 20 acres and surrounded by native Texan trees, the home feels like part of the landscape. But don’t kid yourself — this home is as luxurious as they come. Designer tiles, fixtures, and finishes are found throughout the kitchen and bathrooms.


This home might have been built in the time of Reaganomics but the look, feel, and style are definitely from the 21st century.
Private And Picturesque
If you are looking for one of the most unique properties around, this home is for you. With such a large piece of property, you could not only expand the home but add various types of agriculture and animals if you desired.

Otherwise, enjoy this beautiful home tucked (literally) into the landscape of a true Texas piece of property.
424 Llano Court is found in Weatherford, Texas. It is listed by Amber Sustala of Williams Trew Real Estate. This one-of-a-kind property is available for $1.5 million.
