
I’m smitten. And that’s not easy to do.
My heart skipped a beat when Allie Beth Allman & Associates’ top-producing Realtor Alex Perry sent me what I’m calling the “New Old House.” My preservationist, traditional, Tudor-loving heart skipped a beat. It’s the most refreshing take on paying tribute to the past while embracing the future we’ve ever seen in Dallas. We are not known for wholeheartedly embracing different.
It’s time we did.

Do you remember in 1989 when the iconic I.M. Pei-designed pyramid was added to the historic Musée du Louvre in Paris? Purists thought the 12th-century fortress, which opened as a museum to the public in 1793, had been defiled. Criticism was harsh. The concept of contemporary architecture against a classic French Renaissance style was considered sacrilegious and an ego project for the then-French President Francois Mitterand.
Like any daring move, it changed the way we look at architecture. Initially, I found it jarring, having spent my formative years on field trips to this museum. But when I saw it as an adult shortly after it was completed, I understood and embraced the juxtaposition of old and new.

Old is New Again in The New Old House
While this magnificent home is not a combination of old and new, homage and inspiration are the points here. The concept of paying tribute to the old is what makes the difference. Even more exciting is the hope that it inspires those with historic properties to think more creatively. Instead of tearing down venerable properties, the idea should be how to make them work for modern owners with sleek additions.
There is also inspiration here for our builders. The white box is dead. It is now the McMansion of yesterday that will be hard to sell tomorrow.

Change is necessary and is, quite often, outstanding.
Fortunately, two intelligent and talented women — Jenna Janson and Cristi Luter, principals of Janson Luter Architects — lead by example with this custom New Old House.
“The site was the inspiration,” Christi Luter said. “This lot made this house, and great clients with no preconceived expectations.”
Inspiration For a New Old House
The owners had always loved the homes in the Upper Hudson River Valley, where it was not unusual to see contemporary additions to historic residences. There was no existing historic home on this lot. Still, juxtaposing two elements was appealing, bringing that old-world charm together with sleek modern construction. Building thoughtfully with well-proportioned, right-sized rooms and with consideration to the site was paramount.
“The site already had a big drop,” Luter said. “We thought, why not try to utilize that?”
The idea worked beautifully and created a great deal of privacy.
“The only thing you can see from the street is the more traditional looking two-story piece on the left side of the site,” Luter said.

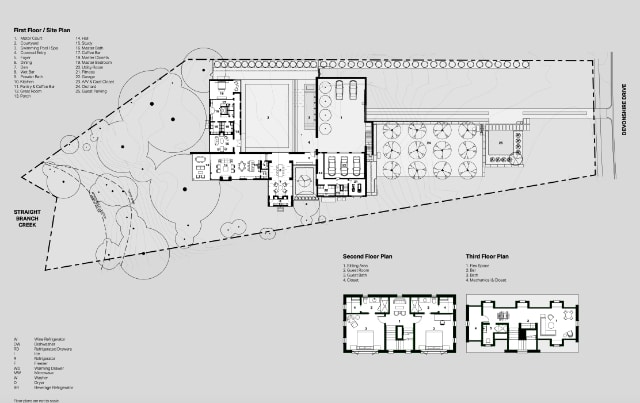
The house sits back about 100 to 150 feet from the street. The cottage section and wall are made from stone the architects sourced from Montana and laid by a highly talented stone mason. On the higher level, an orchard was planted, providing even more privacy and a serene wooded approach to the reveal of the modern section.
The descent into the motor court offers the first glimpse of the utterly unexpected transition.
“We used a smooth Indiana stone,” Luter said.
Walking through an opening in the wall from the motor court, you find a manicured lawn and pool. This wall continues into the house and beautifully divides the public and private spaces.

This undertaking was truly the dream team project, with John Sebastian as the builder and Chad Dorsey Design responsible for the incredible interiors. Chris Angelle of Chris Angelle Design was responsible for the lighting selections of the home. The finishes and amenities list I received is three pages of everything you’ve ever wanted in a home.



Furnished designs by Chris Angelle Design completed by Frost Visualizations







The landscaping by Bill Bauer and Andrew Luter of Garden Design Studio was as well thought-out as this 6,481-square-foot, four-bedroom, five-bathroom New Old House.
Cleverly complementing the two structures, the landscape on the east side of the 1.44-acre lot is organized into gardens, rows of trees, and neatly stacked stone walls. The landscaping adjacent to the creek was purposefully left in its original dense wilderness state, with 100-year-old live oak and pecan trees.

This was, without a doubt, a labor of love for all parties involved, and that’s the mark of intelligent clients. When you allow talent to flourish, your return will be more than you could have ever imagined.
Alex Perry has 9131 Devonshire Dr on offer for $15.5 million.
