
When I was a high-rise n00b, I didn’t consciously understand why I gravitated towards one floor plan versus another. Sure, sometimes it’s easy to spot — one’s too small, one’s got an inconvenient pillar, another doesn’t have enough closet space, and yet another is on a too-low floor. But why, when all things were relatively equal, did some units appeal to me versus others?
Thick and Thin
When you’re standing at the front door of a condo, how far is it to the windows? That’s one quick thickness measurement. From there, understand how many rooms or functions are between the doorway to the windows. For an obvious example, 30 feet may seem quite thick, but if that 30 feet contains a living room, dining room, kitchen and a bedroom, it’s going to feel cramped. No matter how wide the unit is, that’s just a 7 foot “thickness” per room … the width of a walk-in closet.

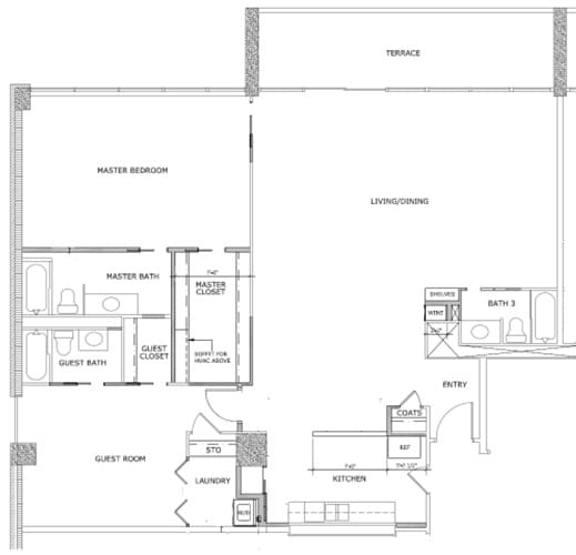
Above, you can see that in roughly 32 feet of “thickness” you can fit kitchen, living, and dining areas without feeling “thin,” This 1,212-square-foot condo feels quite spacious.
By the same token, what if a condo is one-room thick but very long? Again, if the thickness measurement is OK, you can have quite spacious rooms.
The difference between” thick” and “thin” high-rise floor plans really comes into play when all the measurements are contrasted against each other. For example, “thinness” matters less in units with split bedroom configurations (a central living area with bedrooms on either side), but may matter more in units whose rooms are all stacked in one direction (e.g. kitchen/living, bedroom, bedroom)

Your gut “a-ha” moment will come as you move around the space. Condos that are very long tend to have a back hallway connecting all the individual rooms. By contrast, condos that have a multi-room thickness create traffic patterns more akin to a single family home.
Thick and Thin –Extra Credit
Some floorplans are both thick and thin. For example you may walk into a “deep” unit that has living, dining and kitchen laid out in a row, one “room” thick that transitions into bedrooms that are stacked (because it’s a corner unit).

These units often have very generous living spaces coupled with medium-sized bedrooms. Since most of my bedroom time is eyes-closed time, I don’t require a warehouse bedroom. (Confession: I never understand enormous master bedrooms with seating areas. I either wonder why I’d want an audience or think about those skeevy hotel room chairs I cover with a towel before sitting on. At best I’d have a bench at the end of the bed to put on shoes and socks … but I digress.)
Thick and Thin – Extra, Extra Credit
For those looking to combine units, room flows become more pronounced. Connected units in a “thin” building will feel very long … like a “shotgun” house. Whereas connected units in thick condos will likely create more complicated flow issues, because instead of simply extending a back hallway, you’re having to reconfigure room layouts or create hallways to get into new spaces.
For example, were I to purchase the adjoining unit, I would have to create a hallway to access the second unit’s rooms. The only way to do that would be to shrink the two guest bedrooms that back up to each other to create a new hallway.
It’s all About the Windows
This may all sound obvious, but high-rises are not typically laid out as a single-family home. If you’re not used to high-rises, you might know something’s up, but not understand what. You may also think because you’ve been through umpteen ranch homes, you’ve got it covered. Not necessarily, ranch home layouts can be quite different. The reason, believe it or not, has to do with windows.

In a free-standing home, the architect has 360 degrees of windows to play with when designing the average rectangular home. In a condo, many units will have only one face of windows. Corner units have two. In more complex buildings … those containing more than four corners … units can have three walls with windows. (If a unit takes up a whole endcap of a building, it too will probably have three faces … and you’re likely in penthouse land.)

The windows are important because they dictate where and how many bedrooms are possible. All bedrooms must have a window. Sure people turn windowless “offices” or “studies” into bedrooms, but legally, they’re not a bedroom … just as a room without a closet isn’t classed as a bedroom either.
There are some buildings that sneak in bedrooms where they shouldn’t be. If at least one wall of a room doesn’t reach the ceiling, it’s not considered windowless and therefore can be classed as a bedroom. It’s not actually about windows, it’s about egress in case of emergency. The Haven condos in Oak Lawn pop to mind as a building with windowless second bedrooms where walls don’t go to the ceiling.

What’s right for you?
As they say, you’ll know it when you see it. Make sure when you’re looking at condos (high-rises in particular) you see a variety of buildings and floor plans. Also, explore buildings of different ages. Thin or thick knows no era. Also, construction technologies have changed as have floor plan philosophies. You may find yourself more comfortable in an unexpected building. Lord knows I bought in the last place I expected.
Since you asked, personally, I prefer thick or combination floor plans. I like the generosity of living spaces and minimal hallways. There is also a certain symmetry in the floor plan that I like (without knowing why back when I was shopping). I essentially bought a 45-foot square.
Recently I met folks who’d combined four small units in a “thin” building and love it. You might too.
Dallas’ Unofficial Thick and Thin List
I haven’t been in every building in Dallas, but here’s a list of those I’ve been into (and can recall). So it’s by no means exhaustive, but as you look in these buildings, a light bulb may fizzle to life as you match your feelings with my thoughts.

- Thin: W Residences, The Centrum, The Beverly, Preston Tower, La Tour, “21”, Turtle Creek North, Mayfair, and One Arts Plaza.
- Thick: The Vendome, The Claridge, Athena, The House, The Stoneleigh, Park Towers, Metropolitan, and Plaza I & II.
- Combination: The Warrington, The Ritz, and 3525 Turtle Creek.
** Further complicating this list is that different floor plans in the same building can be thin and thick. “Combination” units are often corner or three-faced units because they can wrap around giving those units more window options.
Summary
When buying a condo, take time to understand what floor plan aspects appeal to you and why. By fine-tuning what works for you, making a decision becomes much easier.
Remember: High-rises, HOAs and renovation are my beat. But I also appreciate modern and historical architecture balanced against the YIMBY movement. If you’re interested in hosting a Candysdirt.com Staff Meeting event, I’m your guy. In 2016, my writing was recognized with Bronze and Silver awards from the National Association of Real Estate Editors. Have a story to tell or a marriage proposal to make? Shoot me an email [email protected].
