
A local developer announced last week that he’s buying the Cabana Hotel and redeveloping it into affordable apartments.
Zachary Krochtengel of Sycamore Strategies recently made headlines for his plans to build a mixed-income project, Cypress Creek at Forest Lane, in the Lake Highlands area. That project was denied by the Dallas City Council due to longstanding deed restrictions, resubmitted as a Public Facility Corporation project, resubmitted again as non-PFC project in partnership with the city, and is scheduled for a council vote in June.
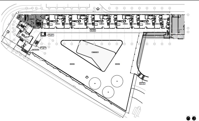
The Cabana Hotel renovation is unlikely to garner as much opposition as the Cypress Creek project has. The 10-story landmark hotel on Stemmons Freeway has been vacant and gutted for years.
Krochtengel spoke exclusively to daltxrealestate.com on Friday about the project.
“We are excited about the opportunity to revitalize such an important part of Dallas’ architectural history while providing much needed mixed income housing in the Design District,” he said. “The unique design elements of the Cabana Hotel will make for one-of-a-kind units with unparalleled views of downtown Dallas.”
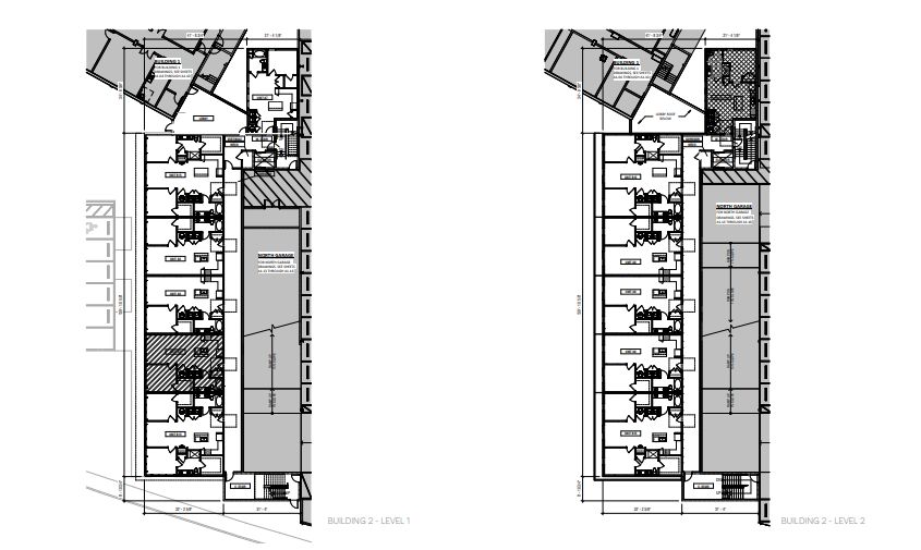
The developer added that he’s seeking Low-Income Housing Tax Credits to finance the development. A plan presented Friday to the Urban Design Peer Review Panel calls for removal of an existing parking garage, adding new construction, and creating a better pedestrian connection on the back side of the property along Slocum Street.


Built in 1962 by Jay Sarno of Caesar’s Palace fame, the Cabana Hotel holds many stories of celebrity parties with The Beatles and Led Zeppelin. It was repurposed into a county jail and purchased in 2017 for a reported $8.1 million by Mehrdad Moayedi’s Centurion American Development Group.

Sycamore Strategies is contracting to purchase the property, but a price has not been disclosed.



