
You may recall when we wrote about the very first model unit at The Stoneleigh Residences, unit 3C, elegant and sophisticated, just like the Hollywood Glam 22 story residence building itself. The Stoneleigh Residences are filling up very quickly over off Maple Avenue at Wolf Street, I toured #3C, built out by TriArc Construction, the condo building division of Crescent Estate Custom Homes.
Sold. Gone. New owners as of May 17. This home is 2691 square feet and went for almost $600 per square foot.


The Stoneleigh is filling up. It is the design pride and joy of Dallas Design Group. As we have told you, Don and Linda Jo Carter shed their Park Cities home in July of 2013 and snapped up a penthouse at The Stoneleigh. Also, of course, a place at The Ritz. So did Mavericks head coach Rick Carlisle, plastic surgeon Natan Yaker, and a sprinkling of physicians and professionals.

One huge draw is the Stoneleigh’s party room, a veritable 4,500 square foot ballroom (they call it banquet room, I call it a ballroom) on the third floor that is available to all guests for large events and parties, without a fee, I might add. HOA’s are running .53 per square foot and include the use of more than 15,000 square feet of common spaces including the lobby, a bar, the aforementioned ballroom with an extensive catering kitchen attached, decked out bar with owner’s lounge, a quiet room, a 3500 square foot exercise center with spa, lockers and steam and dry sauna room, a private pool that is heated year round, conference rooms (3) a gas grill and fireplace and strolling lawn, including an area for pets.




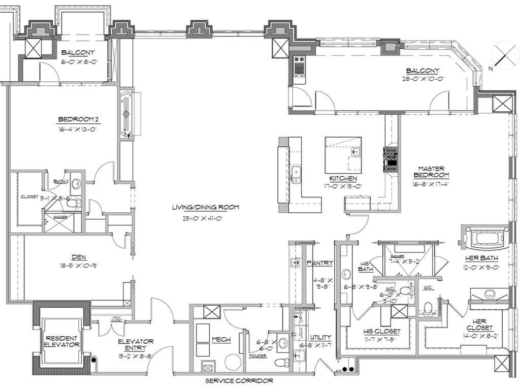
Really, I think the Stoneleigh offers the largest, most comprehensive owner’s spaces I have seen thus far in the local condo market, but warning: prices are not going down. Looking at Sharif & Munir’s Unit 19B, below, it started at $2,950,000 but is now an even $3 million. Guess there’s no stopping once you get to the top!

