This quintessential Charles Dilbeck Midcentury Modern in Russwood Acres is going to take your breath away. Wait, what did I say? Dilbeck and Midcentury Modern. Do those two terms even go together?
Yes, indeed they do, but rarely.

We generally think of architect Charles Dilbeck as the eclectic dude that was inspired by Tom Mix (look him up, my Millennials) to create whimsical homes with stained glass, iron gates, and fanciful details. Hold that thought. He also created a few Midcentury Modern masterpieces. This Dilbeck Midcentury Modern at 5016 Tanbark is one of the most striking examples I’ve ever seen.
Known as the Mathews Home, it was on the Preservation Dallas Tour in 2018:
In 1962 Charles Dilbeck designed two very large homes nestled into two adjacent cul-de-sacs in Russwood Acres. Both the Mathews House, at 6,500 square feet, and the Lobello House, at 8,800 square feet, were his boldest contemporary designs while still comprising Dilbeck’s idiosyncratic ranch style. Most unfortunately, the Lobello House was destroyed by fire in 2016. Fortunately, the passionate owners discovered the original blueprints and are rebuilding from the ground up.
This home was originally built for Sam’s sister. If I’ve done a proper job of sleuthing, she married William T. Mathews. Hence the home is known as the Mathews House.

Lobello was a mover and shaker in Dallas. He began life in the restaurant business, sold one of his drive-ins to make way for a Love Field extension, moved into real estate, pioneered off-street parking, and built the first neighborhood shopping center. (You must wonder when the guy slept.) He is best remembered as a chief developer of Preston Center. So, the point here is he knew construction, knew architects, and chose Dilbeck to create his own home and one for his sister.
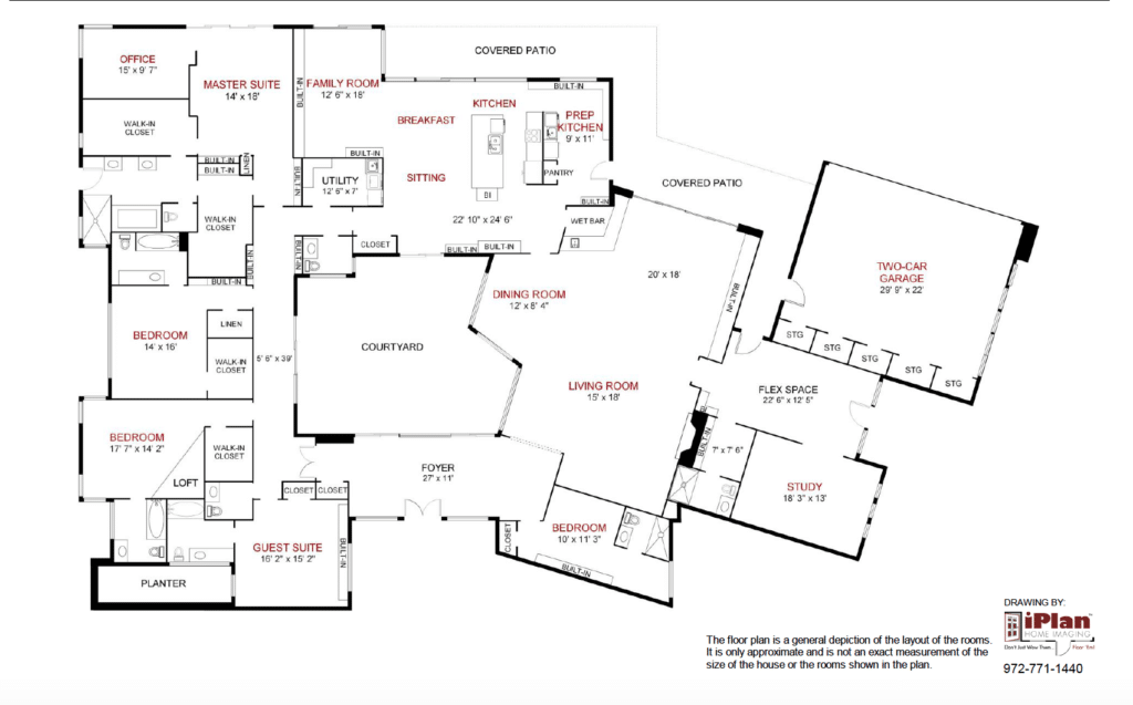
Remember, this was the early 1960s, and we were not seeing 6-9,000-square-foot Midcentury Modern homes being built. When we think of midcentury design, we think of small bedrooms and even smaller closets. This is a big house, with big bedrooms, big closets, and a big personality.
“This Dilbeck midcentury modern was clearly intended for a large family,” Dave Perry-Miller Real Estate listing agent Ryan Streiff said. “It has expansive rooms, which is unusual for the time and it feels substantial.”

It’s so refreshing when these architecturally significant houses pass into the right hands. The present owners have taken this home to a new level that I believe Dilbeck would love.
One of the first things they did was increase the ceiling height by removing the ductwork and putting in a Daikin ductless system. That allowed for the installation of that gorgeous bamboo ceiling and opening up the kitchen. They did all the things you never want to do, but know you should do, like adding tankless water heaters, replacing doors and windows, putting solar panels on the roof, and installing a Control4 Home Automation System. The five bedrooms are all ensuite, and of course, all six bathrooms and both powder baths received updates.


One of the many improvements was to demolish an old patio and create a courtyard with a David Hocker-designed fountain. You can see this little slice of serenity from the major living spaces in the home. It’s so much better than a patio, and another improvement I think Dilbeck would embrace.
There are three of these courtyard areas as well as an outdoor shower and what seems like miles of covered patio space overlooking the pool and fire pit.



This Dilbeck midcentury modern masterpiece is not in MLS yet so give listing agents Ryan Streiff and Jason Bates a call. At only $2.195 million, I don’t think this iconic house will be on the market long.
Open House: Sunday, May 5, 1 to 3 p.m.
Karen Eubank is the owner of Eubank Staging and Design. She has been an award-winning professional home stager and writer for over 25 years. Karen teaches the popular Staging to Sell class and is the creator of the online course, The Beginners Guide to Buying Wholesale. Her love of dogs, international travel, history, white paint, champagne, artificial turf, and Tudor and Midcentury Modern homes, and any house designed by Clifford Hutsell knows no bounds. Her father was a spy, so she keeps secrets very well! Find Karen at www.eubankstaging.com
