
Richardson is booming right now and Hawkins-Welwood is not one to let a great neighborhood pass it by. Case in point? Their fabulous new construction home underway at 1235 Cheyenne Drive in Richardson’s sought-after Reservation community.
“There is a huge trend of builders coming into Richardson right now,” says Kelly Ongena, sales director at Hawkins-Welwood. “It’s a major draw for families because of the great land opportunities and exceptional schools, like Mohawk Elementary. People are investing in homes here. And we are thrilled to announce a fantastic new opportunity, which is great for families who want a timeless home with access to great schools.”
Hawkins-Welwood Builds Timeless Architecture That Creates Lasting Value
As premier builders in Preston Hollow and Highland Park, Hawkins-Welwood is pleased to branch out and make their mark in Richardson.
“We build quality no matter where it is,” says Ongena. “We are known for our elevations and truly believe that timeless architecture creates lasting value. Being able to offer such a high-quality product in proximity to one of the area’s top elementary schools is rewarding for us. And the tight-knit community here is incredible. Throughout our 50 year history, our goal has always been to construct properties that exceed the standard. This custom home in Richardson is no exception.”
Richardson’s New Hawkins-Welwood Home Set To List At $1.395 Million

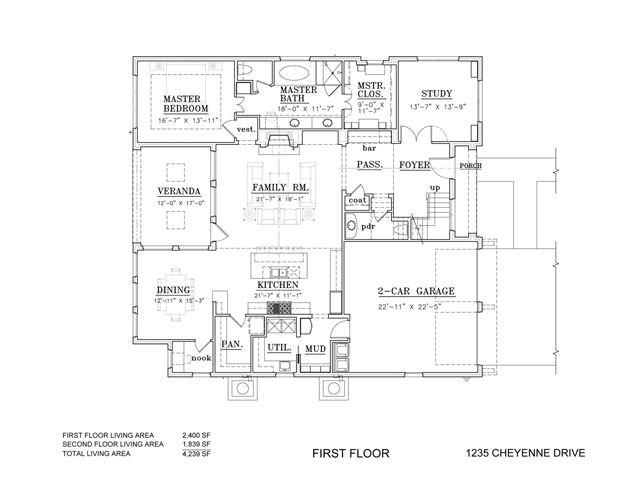
The four-bedroom, four-and-one-half-bathroom beauty in The Reservation will list at $1.395 million. It sits on a prime corner lot and offers 4,239 square feet of gracious luxury living.
“I love the floorplan of this home,” raves Ongena. “It flows really well with everyday life for kids and family. It is also perfect during the holidays. Or for hosting parties and entertaining when we get back to that again. Our focus here was putting the kids rooms upstairs and making the downstairs area right-sized.”
Intimate Yet Spacious And Built To Entertain

The result? An inviting retreat that is both intimate and spacious. Other highlights include a spectacular open-concept chef’s kitchen and a family room that leads to a covered veranda for effortless indoor-outdoor entertaining.
The master wing, which spans nearly half of the main floor, affords a generous footprint as well. It comes complete with a spa-bath featuring dual sinks, a soaking tub, separate shower, plus an oversized walk-in closet.
And for those who work from home, the light-filled study at the front of the house will do the trick. Of course kids and parents alike will appreciate the secluded upper level. It consists of three en-suite bedrooms and a massive game room for family fun.
Complete By Spring 2021, Now Is The Time To Jump On This Rare Opportunity
Lastly, with completion set for spring 2021, this exquisite Richardson home offers buyers a rare chance to get in early and provide input on the finishes.
“Whoever comes in now will have great design control,” Ongena says. “We have already finished the very important part of framing the home. But if a buyer gets in early, they can work with our in-house designer to select all the elements that will really make this house a home.”
To learn more about 1235 Cheyenne Drive contact Kelly Ongena at [email protected] or 972-757-1870.
