- Project 9
- HighGrove Villas & Gardens and Reserve at Kessler Heights by David Weekley Homes
- HighGrove Villas & Gardens (easternmost project, across from Rosemont Primary School)
- Reserve at Kessler Heights (westernmost project, just south of Kessler Woods neighborhood)
- Project 10
- Project 11
- Project 12
- Project 13
- Project 14
- Project 15
- Project 16

In the first part of this overview we covered the big development projects under construction immediately around the Bishop Arts District (projects numbered 1-8 on the map below.) Driving through the neighborhood, it’s unbelievable how much construction is occurring simultaneously. Over $330 million according to my calculations. Not to mention all the road work and utility work: the extension of parallel parking further south on Bishop Ave has wrapped up, Adams Street has been widened, Melba and Madison will get a facelift as soon as the utility work is complete, and Jefferson’s having new brick crosswalks and beautified medians constructed.

The road reconstruction in North Oak Cliff isn’t over yet though: soon the Tyler-Polk Two-Way conversion will be under construction (planned completion in 2019) and a “complete streets” redesign of Davis Street was on the agenda in 2014 when the City Design Studio completed a thoroughfare study. Who knows when that will get funded. Hopefully not for a while — we’re all getting a bit of construction-fatigue.
Here’s the skinny on the development projects sprinkled all over the North Oak Cliff neighborhood, in various phases of development. Note the project numbers corresponding to the map above.
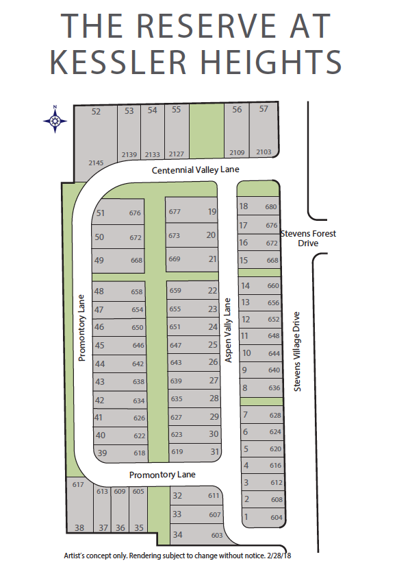
Project 9
HighGrove Villas & Gardens and Reserve at Kessler Heights by David Weekley Homes

David Weekley Homes is branching into a new urban product with a few similar projects around the metroplex now. Their new designer, “Preston Wood, joined the team as the guru of taking a strange parcel and doing justice to the neighborhood whether it’s a more cutting edge or traditional product,” says Adam Cornett, Division President for David Weekley Homes in Dallas. “He’s worked in almost every metro area of the U.S. and brings ideas from all over.” Currently, There are more than 30 projects in development in DFW now. This new product is aimed at a mature buyer, empty nesters, young families, and professionals used to a higher-density living but in a more suburban context.
HighGrove Villas & Gardens (easternmost project, across from Rosemont Primary School)
- Will finish construction in August.
- 1 left in each product line – 2, 3, and 4 stories
- Priced $450,000+ for Villas (33 total) which are the smaller (3 bedroom, 3 bath); $540,000+ for Gardens (20 total) which have a small side courtyard (2-5 bedroom, 2-3.5 bath)
- Green common area with shared fire pit






Reserve at Kessler Heights (westernmost project, just south of Kessler Woods neighborhood)
- construction began this summer
- All 2-story homes
- Different color pallet from High Grove
- Common Green center which many homes will face
- Priced $421,000+ for Cottages which are smaller (3 bedroom, 2-3.5 bath); $454,000+ for Gardens similar in size to cottages with a small side courtyard (3 bedroom, 2 bath) ; $546,000+ for Executives (4 bedrooms and 4 baths.)






Project 10
Blackwood Market by Blackwood Developments

- Abutting the historic Ty / Po buildings at Davis and Tyler/Polk
- Speculative restaurant and retail
- Spring 2019 delivery, drawings still preliminary
- 5 retail/restaurant spaces from 1,452sf to 2,053sf
- 1 corner retail/restaurant space 3,008sf with patio
- Leasing info available from Shop Co.




Project 11
Davis Street Market

- Retail and residential mixed use
- About 2 years or more out
- New design forthcoming

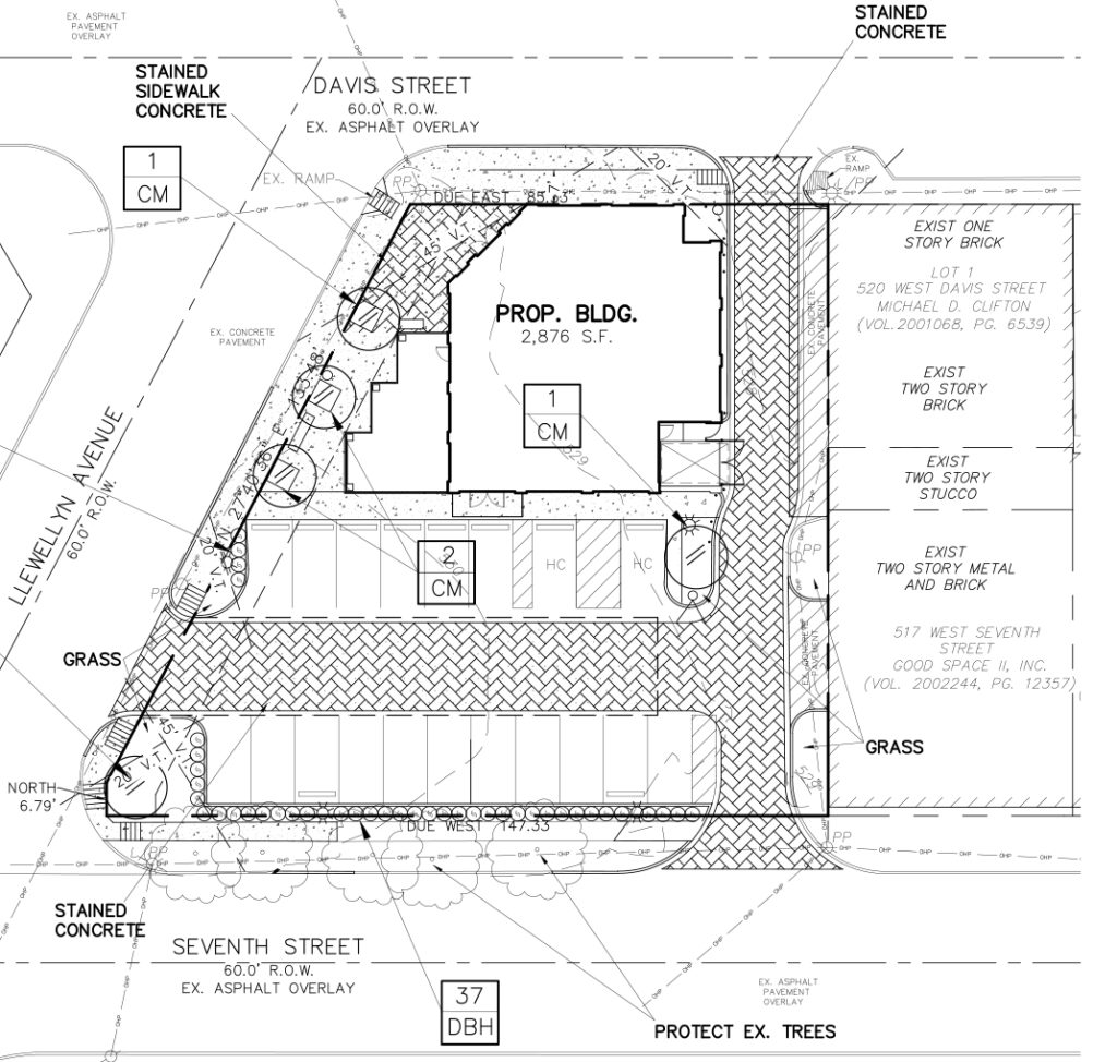
Project 12
600 W Davis St

- Speculative restaurant space 2,876sf
- Leasing info available from UCR





Project 13
Villa South Addition by Oaks Properties

- Mid-rise residential development
- All existing structures are planned to be demolished, with the exception of one which could potentially be moved to a nearby lot
An application was pulled from the April 19, 2018 CPC agenda to begin work on this newly acquired property. The application was to combine 19 lots on 2 sides of the street into two lots: 1 an entire block long (1.42 acres), 1 almost the full block (1.24 acres). Developer has opted to discuss plans with the neighborhood community more before moving forward.
Oaks Properties LLC, founded in 1970, is a family owned developer, re-developer, and operator of residential rental communities in Minnesota and Texas. Oaks Properties owns ten communities in the Twin Cities metropolitan area, and four other communities in the DFW metroplex: at the Downtown Garland DART rail station, near White Rock Lake, in Las Colinas, and in Coppell.






Project 14
Townhomes on 9th St by 3 separate developers

- Three individual projects.
- 8-12 townhouses each
- No other details available yet
- Urban Genesis own the third and fourth lots west from Bishop Ave on the southern side of 9th.
- Lot on northern side owned by same developer as Melba Townhomes (#6 from Part 1)




Project 15
10th St Townhomes by EKO Townhomes

- Phase 1: 12 units, to be complete in August
- Units for sale soon, $360s to $380s
- Phase 2: 12 more, mirrors image, begins upon Ph 1 completion
- Phase 2 will be for sale first quarter of 2019


Project 16
435 W 10th St

No info available yet.


And there are about 8 other projects currently under construction or in development … at least (I seriously stumble on a new project every week).
Stay tuned for Part 3: more townhouses coming to Zang Blvd and what’s going on with that historic home next to Alamo Manhattan’s Victor Prosper development…
