
Hopdoddy fans will want a tissue handy as they read about plans to redevelop their Preston Center location. To orient you, the lower right “lit” corner in the rendering above is that corner of Luther Lane and Westchester Drive, kitty-corner from the infamous Preston Center garage.
Two Parcels, Two Architects
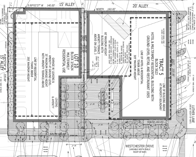
Last night District 13 council member Jennifer Gates hosted a town hall meeting for the developers to present their plans. Earlier in the day I spent my own quality time with the stakeholders. It’s an odd “deal” where there are two parcels owned by two different owners but who worked together with different architecture firms (GFF and HKS) to create the not-identical twin towers.
The building on the left will be a 270-unit, 350-foot-tall apartment building on the site of a three-story medical office building owned by Leland Burk’s Burk Interests. The right building, owned by Rosebriar Holdings, will be a 305-foot building housing a 245-room luxury hotel topped by 90 condos.
There are many things to appreciate here. Except for a minor amount of surface parking, all the parking is underground for both projects. The driveways and loading docks are all interior to the building. This frees them from the 100 percent lot coverage podiums that plague cheaper builds (and are allowed by-right on these parcels). Burying the parking freed up space at ground level – instead of total coverage, the left building has 70 percent at ground level while the right building is 80 percent.

What do you do with all that space? Plant trees. Thirty-nine between the two sites. As you can see on the landscape plan above, Westchester gets a double row of trees flanking a 10-foot sidewalk. That’s quite an increase from the existing six trees in front of the southern building and zero around Hopdoddy.

Look center back in the color rendering above and you will see a green roof atop the hotel’s ballroom. There are more trees there and sprinkled on multiple upper levels throughout both buildings.

Between the two buildings is an abutting courtyard that makes both projects feel more generous. On the left (apartment) side, there will be an outdoor area for the building’s fitness center. That space does interesting double duty. They’re covering it in a surface called Grasscrete that does what it says – allows grass to be cultivated within a concrete substrate. It allows for everyday use but also will support the weight of a fire engine should that be needed. It’s a great way to use less hardscape without compromising on safety.

Over on the Hopdoddy corner the green continues. Today’s restaurant and retail feel comes forward with new opportunities down Luther and Westchester. Rosebriar is planning for another restaurant on the corner with an expanded patio area. Upon seeing the double-story space and the overhang running down Luther Lane, I suggested the restaurant get a staircase and offer swish seating on an upper outdoor level – just two or three tables for those in the restaurant’s little black book of clients. And since it’s a hotel and condo project, expect its built-in customer base to enliven the area considerably more than Preston Center’s current evening yawn of excitement.

The amenities are also being handled well. You can just make out the hotel pool and deck about halfway up the right building while behind the notched corner on the roof is the condo pool and amenity deck. For the apartment building on the left, pool and amenities will also be on the roof. Again, the result of not having the ubiquitous muffin-top podium.
Positive Response From Attendees
Gates’ town hall had approximately 40 attendees and the questions weren’t alarming. Nearly all loved it and certainly no one hated it. But there were the typical questions about traffic, parking and the impact to neighboring properties immediately south on Sherry Lane. Each were answered positively. Parking will all be under their buildings and not additive to Preston Center (imagine paying that kind of money to live/stay there and wanting to park in the Preston Center garage?).
Traffic-wise, given that the apartment building is replacing a medical office building, trips are expected to actually be less. Also, traffic patterns for residential are the opposite of those for Preston Center’s office buildings. Residents leave in the morning when commuters arrive and vice-versa in the evening – and that’s even if there’s a lot of commuting residents. At these price points and given the average age of Preston Hollow residents, traffic may be a lot less than they think.
When I spoke with the team earlier, I was told that since the plans were announced months ago, they were getting about a call per week from former area residents wanting to ditch Turtle Creek and return to their old stomping ground – sight unseen. To which I replied, they’d never get that call from me – but then I didn’t grew up in Preston Hollow.
My other observation was that it would be nice to find a way of visually connecting this pair of projects to the St. Michael’s development. For example, I’d pretty-up Sherry Lane, a largely treeless concrete-covered block and create a connection to the open-air offerings there (e.g. the Farmer’s Market). Of course these owners can’t control Sherry Lane, but were I an owner on that bland strip, I’d look into how I could attract those 400-plus new residents.
Of course folks wanted to know who the hotel would be, but we were only told “luxury” (of course). Hotels don’t like to be tattled on.

Wayback Machine
Finally, let’s go back in time to 2014 when Luke Crosland wanted to construct a 27-story apartment building called Highland House on the same site as this proposed apartment building. When that project was quashed, Crosland sold the property to Burk.
Did six years net a better project? Let’s look.

The table above compares the two projects in a variety of ways. Burk gives the neighborhood completely underground parking, over 20 percent more open ground, and lots more trees. In exchange, he wants one additional story and 20 additional, slightly smaller apartments.
It’s rare that waiting nets a better result, but I think in this case it has. There’s no comparison for the Hopdoddy corner because as far as I know, this is the first redevelopment attempt since it was built in 1958.
In the end, the stakeholders only made one mistake with me. They couldn’t stop crowing about how well these projects follow the Preston Road Area Plan. Had they known more about me, they’d have told me how lucky they were to have had a printed version of the plan during the recent toilet paper shortages.
