
This week’s Highlight Home of the Week, sponsored by Dallas mortgage expert Lisa Peters of Cardinal Financial, takes us to Compass RE Texas agent Phillip Murrell‘s new construction listing at 3512 San Jacinto, a four-story home that elicits all the opulence of a luxury downtown hotel here at home.
The Bryan Place home in Old East Dallas is a masterpiece of architecture and craftsmanship, designed by Nunzio Marc Desantis and built by Mark Clifton. Desantis is known for creating hospitality environments such as the W Hotel in Dallas, but this departure from commercial elevates residential design to resort-style living for everyday life.
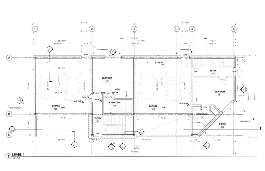
It’s no wonder then that you’ll feel like you’re in a luxury hotel as soon ascend from the first floor with an ensuite bedroom and garage into the main living area, made dramatic with a wall of windows and a high ceiling with wooden beams. Well, theoretically. I haven’t actually stepped in the home — no one has — because it’s not expected to be complete by mid-summer. But if Murrell says it’s going to be grand and elegant like a luxury hotel, then it will be.

On the second floor, the kitchen features top-of-the-line appliances, custom millwork, Versilys marble countertops, and a mirrored slab backsplash that adds sparkle and style. The kitchen opens to the living room, creating a perfect flow for entertaining or relaxing.
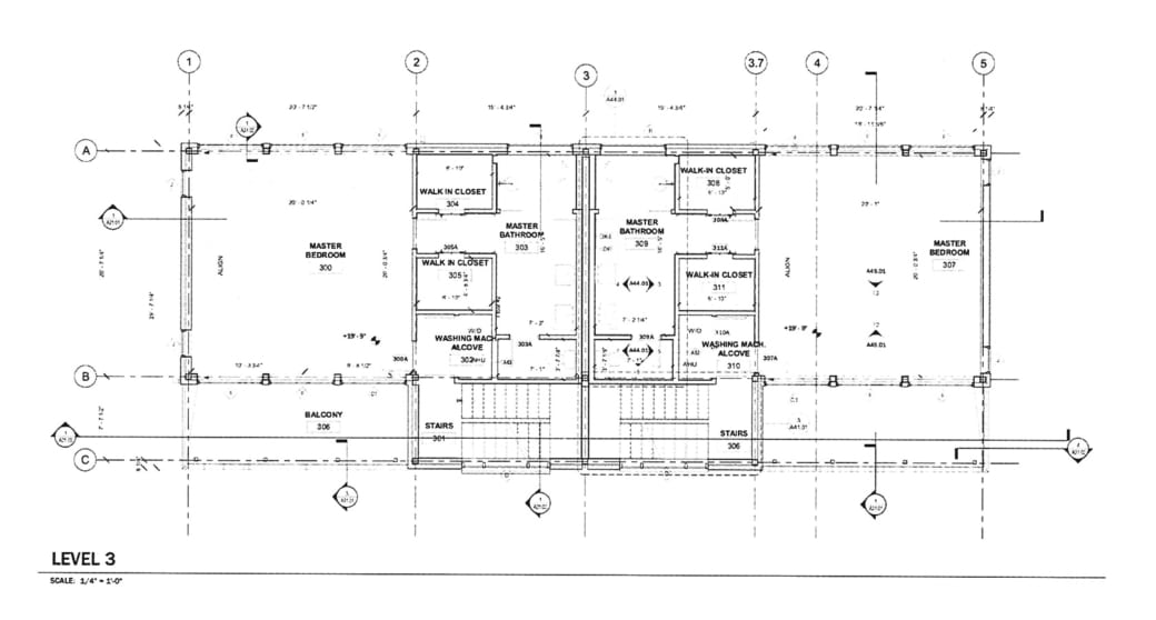
As you’ll see in the photo gallery of blueprints, the primary suite is located on the third floor, where you’ll find wall-to-wall windows that offer spectacular views of downtown Dallas. The en-suite bathroom features custom cabinetry, floor-to-ceiling lilac marble, a large soaking tub, and a spacious walk-in shower.

The top floor of the home is where the fun begins. Here you’ll find a den with a wet bar, a fireplace, and a wall of sliding glass doors that open to an expansive decked terrace. This will be the ultimate spot to enjoy the outdoors and the cityscape. You can watch the sunrise in the morning or the sunset in the evening from this amazing rooftop terrace.
This home is conveniently located near Ross and Haskell avenues near Old East Dallas, where you can find plenty of dining, shopping, and entertainment options. But why go out? You’ve got the luxury life right here at home.
Phillip Murrell of Compass RE Texas has listed 3512 San Jacinto for $1.095 million.




