
Editor’s note: Jon Anderson is a columnist for Daltxrealestate.com. His opinions are his own.
The following was adapted from a series of emails about how to possibly divide a double unit in the Claridge into two units. With help from the current Realtor, could we help this prospective condo buyer out? Read and see.
Dear Jonny: I saw your column last week about Claridge unit 5D and hoped maybe you can help me. I’m sure you’re aware of the Claridge’s double-unit 18A/B penthouse that’s been for sale since 2015. The years have seen several price reductions, knocking more than a million off its original $2.65 million. It might finally be within my grasp – kinda. Like you, I am a renovator and feel the price now takes a needed renovation into account. But here’s the thing, at 5,311 square feet, it’s too big for me. Also, the floorplan of the two combined units doesn’t work. It creates a very long space that originally had five bedrooms, six full bathrooms and two half bathrooms – as you know, Claridge units have full his/hers master bathrooms.
The current real estate agent is Sharon Quist with Dave Perry-Miller whom I think you know. According to Sharon, the current owner wants to sell the unit whole and not re-divide it. Here’s my dilemma and request – could you look at the floor plan and create options for dividing the unit? I saw your reimagining of the 3525 Turtle Creek unit and the one at the Gold Crest and thought maybe if agents and buyers saw the options, it might bring another buyer and myself together on a real estate-style “blind date”.
- Goldilocks

Dear Goldilocks: Thanks for the question and challenge. You’re right, I do know Sharon and with her knowledge and input, I’m happy to take a crack at reworking the floorplan into two workable units.
I first saw 18A/B about four years ago and marveled at the 12-foot ceilings and Turtle Creek views as much as I did the amount of renovation it needed. The “B” unit doesn’t seem to have ever been properly integrated into the rest of the unit. It’s like after converting that unit’s master bedroom into an office they ran out of ideas.
Of course, the obvious place to begin is with how the two units were originally configured. This will tell us where all the walls, structural columns and plumbing are. Unit “A” was originally a three bedroom unit with 2,770 square feet while unit “B” was two bedrooms and 2,541 square feet.
When I spoke to Quist about this request, she told me that buyers love the wide-open spaces on the “A” side but have been flummoxed at how to snatch space from the “B” side while still leaving something salable. So this deal is unlikely to be a straight-forward “A” and “B” split. But I’m committed to finding you a “buying buddy”.
My thoughts fall into two camps. First, I’ll start with dividing the unit so the “A” side gets more space while “B” is still a good, sellable home. Then, I’ll dive into some thoughts on keeping the original units but reworking their plans slightly. (Get a cup of tea, it’s a lot of options).
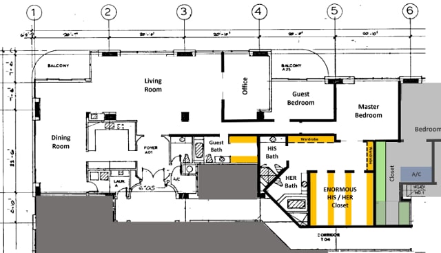
First, I redrew the dividing line between the units. Unit “A” grabs most of the “B” unit’s 780 square foot master suite. The result is the “A” side increasing from 2,770 to 3.350 square feet while “B” slims down to a still generous one-bedroom of roughly 1,960 square feet. Moving the line any further into the “B” unit creates something sad and unsalable.

Extended “A” Unit; Option 1
The kitchen, living and dining rooms remain as they are now. Sure the kitchen is a remodel, but the footprint stays. The only change here is adding an office (alternatively located at the bottom of the dining room to retain the current 48-foot long living room). So to the right, there’s that office with wide double-pocket doors followed by the original unit’s master bedroom that’s now a guest room. Beyond that is the original “B” master bedroom (call it roughly 18-feet square).
The real changes are below, where a stupendous master bathroom appears. First, you’ll notice on the far right the encroachment of the “B” unit’s master closet (gray). Without this, there’s nowhere to put a bedroom closet in the “B” and it’s not like the “A” side will miss it.
Assuming the couple in the master bedroom like each other, there’s one combined master bathroom with a double vanity, water closet and either a bathtub or stand-alone shower. Depending on where the plumbing falls for the toilet, a large wet room is also a possibility. There’s also a giant master closet with an island. Put in proportion, from top to bottom the closet is about 18-feet long.
The second/guest bathroom has a shower and huge closet (which can be kept huge or split and a doorway opening added to the hallway. Either way, lots of storage.

Extended “A” Unit; Option 2
Let’s say the owners don’t get along in the bathroom. This option offers two bathrooms separated by the same giant closet. Instead of the large second closet in Option 1, here it gets returned to its original configuration as a guest bath and smaller closet for the His bath.

Extended “A” Unit; Option 3
This option nets another separate His/Hers bathroom that really maximizes closet space. There are close to 80-feet of linear hanging space.

Petite “B” Unit; Option 1
Here’s what’s left of the “B” unit. The whole design hangs off of the bedroom and bathroom. Because of this, there’s really only one configuration that works. What was a small guest bath expands into the former wet bar area and picks up a double vanity and either a bathtub or stand-alone shower. The new “master” suite also gains part of the original master bath to provide a good-sized walk-in closet. At five-feet wide, there’s about 18-feet of hanging space on one side and the small bump-in that adds another five-feet to the other. The A/C closet can’t be moved.
From there, the unit is largely as intended. To further open the space you’d rip out the wall separating the kitchen and dining room and gain an island.
Sure, there are a million details possible with any of these plans. This is the bare bones to see how the “A” and “B” spaces could be reconfigured into a larger “A” and a still salable “B” unit.
But what if buyers emerge who now feel the price places the original separate-unit configuration within reach? I don’t think a lot of people would go to see a 5,311 square foot double condo in the hopes they could buy just one.

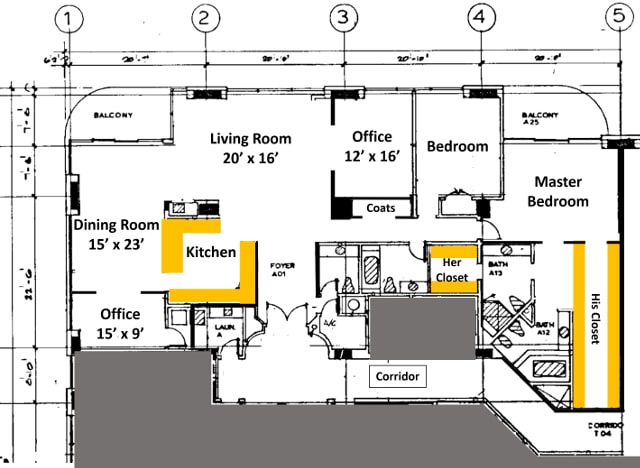
Above is unit 18A’s original “Armstrong” floor plan. Under the numbers “3”, “4” and “5” are the bedrooms. The first bedroom is also listed as a potential study on the original plans. The master bedroom suite is at the end of the hall and contains a his/hers bathroom with separate walk-in closets. Across from the two spare bedrooms is another full bathroom.
For orientation, the existing floor plan combines the living room and the first two bedrooms into a 16-foot by 48-foot living area. The dining and breakfast areas have been also combined into a single space.

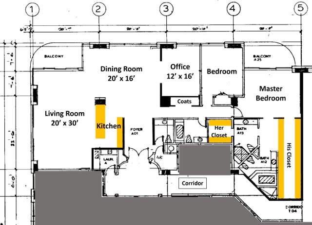
Original “A”; Option 1
My suggestions here are simple. Largely return the “A” unit to its original condition, but …
- Reduce the first bedroom in size and turn into a home office with double pocket doors. This nets the largest column-less living room possible.
- Restore the second full bathroom
- Restore the his/hers master bathrooms but maximize closet space.
- If I needed a second office, I’d convert the breakfast room.
- I’d open the kitchen as much as possible. There’s a large structural column and/or water cavity that would have to remain, but otherwise, I’d open the walls.

Unit “A” Option 2:
Everything in Option One but completely reorient the kitchen. In changing the kitchen to a “north-south” galley hanging off the structural column and water chase, you pick up about four additional feet in width to the left. This gives a relocated living room better width proportions while leaving the dining room in the narrower space (which fits dining table proportions). A more generous space can be created by enclosing the balcony (something I don’t like to do, but there’s a second one off the master bedroom).
Of course the kitchen and living area reworking can be done with the “extended” plan options too.
Now let’s look at unit “B” options

Original “B” Floor Plan
Entering the large foyer there’s a half bath to the right. In front of you is the living room. To the right is the dining room with the enclosed kitchen and breakfast nook beyond. “Below” the kitchen is the laundry room, AC unit and small storage area.
To the left of the living room are the two bedrooms. Directly above the elevators there’s a second full bath and a built-in wet bar. The hallway ends at the master suite and his/hers bathroom.

Full Unit “B”: Option One (and Only)
Like unit “A”, this option leaves everything in place, but simplifies the floorplan. The wall between the kitchen and dining room is removed. Just like in the reduced “B” plan, I’d remove the wet bar and enlarge the second bathroom. Similar to the “A” side, I’d simplify the master bathroom and maximize closet space.
There you have it “Goldilocks”. Several options to entice a buyer to do the real estate dance with you. (Click here for copy of the full-size graphics used in this column.)
Good Luck. Keep us posted if sparks fly.

Remember: High-rises, HOAs and renovation are my beat. But I also appreciate modern and historical architecture balanced against the YIMBY movement. In 2016, 2017 and 2018, the National Association of Real Estate Editors recognized my writing with three Bronze (2016, 2017, 2018) and two Silver (2016, 2017) awards. Have a story to tell or a marriage proposal to make? Shoot me an email [email protected]. Be sure to look for me on Facebook and Twitter. You won’t find me, but you’re welcome to look.
