
Those of elephantine memories will recall my writing in 2015 about a 12,370-square-foot shell penthouse at the Vendome. Even though the Vendome was built in 2002, the home had never been finished out. The first owner had purchased three penthouses with the intention of creating a singularly spectacular home 20 stories above Turtle Creek. It never happened and was put on the market a decade later – after having paid an estimated $1.5 million in property taxes and HOA dues.
Flash forward and the combined space was purchased by an investor who has returned them to a trio of penthouses that are being finished out as you read. The framing and drywall are up and so it was time to take a peek. They’re still nothing more than large empty spaces so not a lot to see. But there are floorplans, which are immensely helpful to understand the flow of each unit.
The units just hit the MLS and are being marketed by The Morguloff Team within Ebby Halliday. I met and chatted with Danna Morguloff-Hayden about the properties. Each residence will be different. The general contractor is Hudson Construction, who has been recognized by D Magazine “Best Builder” since 2015. The interiors will be finished by design group X+III (Ten Plus Three) whose work you’ve seen in D Home and Modern Luxury.
Aside from the “circle of life” drivel of returning to the scene of a past story, what’s really cool is the ability for three buyers to get a “new build” in a storied and classic building. The original build-out of Vendome reflected the luxury of the day. It was heavier, more traditional and decidedly French. For many, the definition of luxury has changed in the past 17 years. These three units allow a buyer to enjoy the classical chateau exterior of the Vendome while savoring the modernity of what is a newly constructed penthouse.

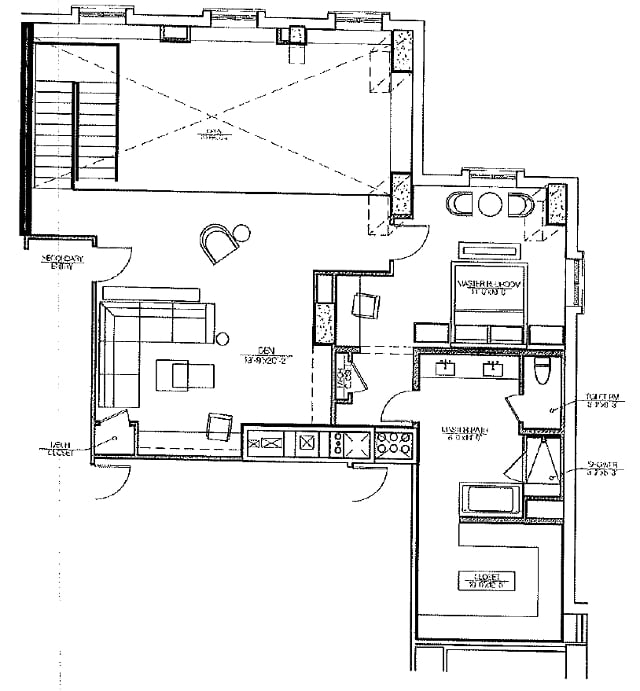
20F – “Baby” Penthouse
Most wouldn’t consider 3,863 square feet as “baby,” but when the largest of the three is 7,143 square feet, it qualifies. Unit 20F is split into 1,634 square feet on the “ground” floor with an additional 1,752 square feet on the second floor, plus 477 square feet of outdoor terrace. It’s configured into two bedrooms with two full and one-half bathrooms and is listed for $2.59 million with HOA dues of $2,672 per month, including utilities.
Looking at the floorplan above, you enter on the lower left into the living and dining room. There’s French door access to the patio. (Note: if you recall the original column, you’ll know that the ribbon balcony encircles the entire penthouse level at Vendome). There’s an open kitchen that faces the windows to make cooking more distracting. On the right is the first of the two bedrooms with a bathroom behind. It’s worth noting that every full bathroom has double vanities and separate shower and bathtub areas. The bedroom also exits onto the wrap-around patio.

Moving upstairs, you pass a walkway with a glass railing connecting the spaces, looking down on the first-floor living areas. That’s one thing I have to point out. Most people move into high-rises for single-story living – “ranch houses in the sky” as I call them. But when the penthouse is two stories with double-height areas, it’s pretty thrilling (if you don’t have vertigo). It’ll always be eye-catching to walk from the stairs to the bedroom past the glass railing. Your eye will see out the first- and second-floor windows 20 stories off the ground next to an indoor drop. It’s a rare juxtaposition of height and view.
But enough of that. The upper floor has the more casual den/living area as well as a full master suite with a never-want-to-leave-sized bathroom and closet.

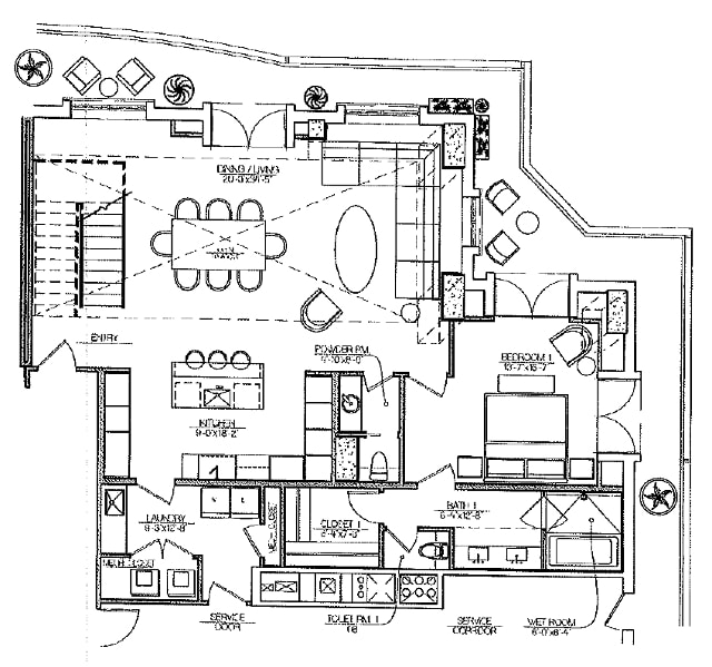
20D – The Middle Child
Unit 20D is the “Goldilocks” size penthouse at 4,613 square feet. There are 2,226 square feet on the first level and another 2,077 square feet above. It has three bedrooms with three full and one-half bathrooms. It’s listed at $3.55 million and its monthly HOA dues are $2,672 – which includes utilities (which I love). Outdoor terrace space is 310 square feet.
Seen above, you enter through the upper left past the staircase and into the generous living and dining room. Another open kitchen drinks in the views, too. On the right, you can see the full-depth master suite with an enormous closet. There’s a “library” on the lower right, but let’s face it, I know you ladies and your clothes – that ain’t no library, that’s the husband’s closet.

For this unit, they’ve magicked-up a virtual rendering of the open kitchen. Of course, since it’s not done, you can change whatever you want. One thing that’s eerie is that when I saw this pic, I thought the stone was really cool. When I realized it wasn’t real, I was disappointed. Then I was told that while it’s all fake, they actually have that stone waiting for someone to use. Yeah!

Moving upstairs and you again see the walkway past the glass railing looking down at the first floor and all the way to the ground through the double height windows. Cool. Also up here is another master suite (seasonal change?) along with the third bedroom and den.

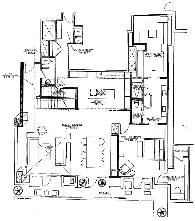
20E – The Granddaddy
Unit 20E is more than half the original 12,370 combined unit. It’s so big that I had to rotate the floorplan for it to fit! You enter through the bottom mid-left, just right of the circular staircase. You’re swept along three living and dining areas – there’s even a wet bar in the upper corner space. The dining room is long and luxurious for hosting large dinners. All three areas have their own terrace access.
The kitchen, which is “below” the dining room, is open to the views. The right third is pretty much a master retreat. Given the size and its own separate living room, it’s moved beyond a plain ol’ suite. As you can see, this unit is really the endcap of the Vendome with views out three sides. It also explains the 1,055-square-foot terrace space.

Upstairs, there are nearly another 3,000 square feet to explore. There are two bedroom suites bigger than your first apartment, along with a pair of cozier, less formal living spaces.
Taking this unit back to three units was the way to go. The market for 12,000-square-foot penthouses is exceptionally rarified air. That’s not to say that penthouses from $2.59 million to $4.59 million are run of the mill. But they’re more affordable and certainly more human-scale.
Now I know what you’re thinking – which is my favorite? That’s a difficult answer. First, for a single person, they’re all gigantic for my needs (or “wants” in truth). I think at the end of the day, I’d pick 20D with changes. I don’t need three bedrooms so I’d reconfigure the ground floor into a LARGE kitchen and larger living and dining area that would erase the ground floor bedroom. I could then convert the upstairs “den” into a second bathroom for the second bedroom and retain the second-floor master. Being a clothes hog, that upstairs office would become a second closet. But at $3.55 million, The Morguloff Team shouldn’t hold their breath waiting for a check from me.

Remember: High-rises, HOAs and renovation are my beat. But I also appreciate modern and historical architecture balanced against the YIMBY movement. In 2016, 2017 and 2018, the National Association of Real Estate Editors recognized my writing with three Bronze (2016, 2017, 2018) and two Silver (2016, 2017) awards. Have a story to tell or a marriage proposal to make? Shoot me an email [email protected]. Be sure to look for me on Facebook and Twitter. You won’t find me, but you’re welcome to look.
